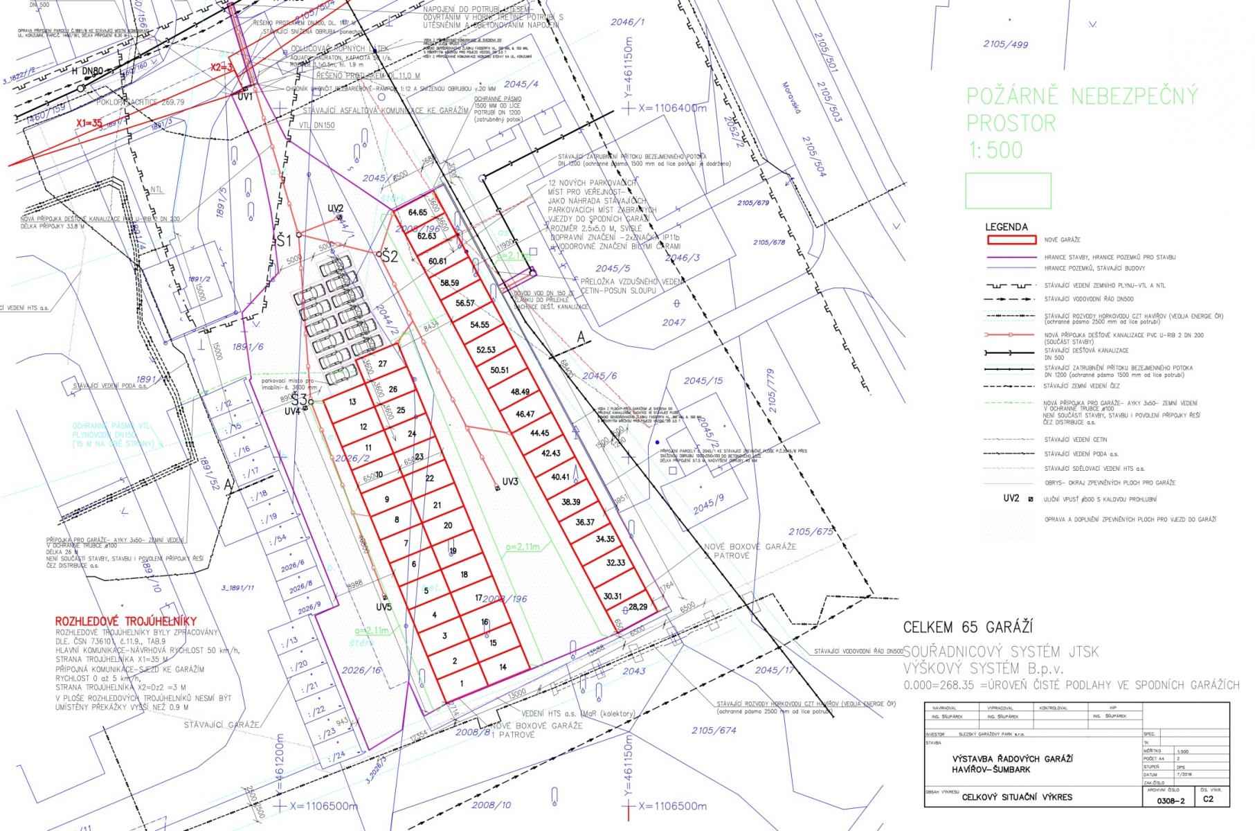
65 novostaveb garáží v Havířově
650 000 Kč/obj.
včetně provize
včetně provize
Popis nemovitosti
65 novostaveb garáží v Havířově
Aktuálně probíhají dokončovací práce a brzy se bude kolaudovat.30 garáží je již zadaných - rezervujte si tu svou co nejdříve!
Tento nově budovaný areál se nachází v Havířově - Šumbarku, na ul. Konzumní.
Co získáte?
- Cca 20 m užitné plochy garáže - ideální pro auto, motorku nebo jako sklad
- Díky širšímu vjezdu zaparkujete v garáži i velké SUV
- Sekční nebo výklopná vrata na dálkové ovládání
- Vlastní elektroměr - plná kontrola nad spotřebou
- Podíl na nově budované asfaltové komunikaci - zajištěný přístup v osobním vlastnictví
Tyto garáže jsou vhodné jak pro osobní využití, tak jako investice se zajímavou návratností.
Aktuálně probíhají dokončovací práce a brzy se bude kolaudovat.30 garáží je již zadaných - rezervujte si tu svou co nejdříve!
Tento nově budovaný areál se nachází v Havířově - Šumbarku, na ul. Konzumní.
Co získáte?
- Cca 20 m užitné plochy garáže - ideální pro auto, motorku nebo jako sklad
- Díky širšímu vjezdu zaparkujete v garáži i velké SUV
- Sekční nebo výklopná vrata na dálkové ovládání
- Vlastní elektroměr - plná kontrola nad spotřebou
- Podíl na nově budované asfaltové komunikaci - zajištěný přístup v osobním vlastnictví
Tyto garáže jsou vhodné jak pro osobní využití, tak jako investice se zajímavou návratností.
Neváhejte a zavolejte realitnímu makléři!
Adam Gombos
realitní makléř
Vaše budoucí nemovitost se nachází na této adrese
