Mezi Havířovem a oblíbenou Žermanickou přehradou se rozprostírá obec Horní Bludovice. A právě tady na klidném místě u lesa naleznete tuto výjimečnou nemovitost.
Jedná se o prostorný dům 6+1 s dvougaráží a zahradou o výměře 4.243 m2, která díky své velikosti a lesu ze severní strany poskytuje nadstandardní soukromí.
Celá zahrada je dle územního plánu zahrnuta v ploše SB - plocha smíšená obytná, takže lze na pozemku umístit další stavbu rodinného domu nebo část pozemku oddělit a prodat samostatně. Pokud byste např. oddělili parcelu o vel. cca 900 m2, získáte takto částku cca 2,25 mil.
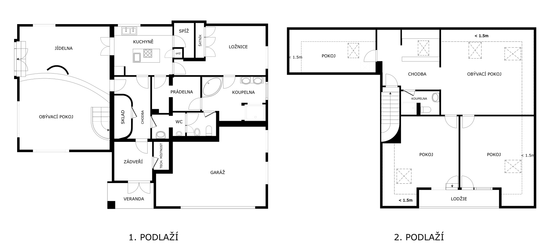
A teď k technickým parametrů. Dům z roku 2008 má obvodové zdivou z Porothermu tl. 45 cm, plastová okna s trojskly a je napojený na veřejný vodovod a kanalizaci. O teplo domova se stará teplovodní podlahové vytápění s tepelným čerpadlem napojeným na rozvody zemních kolektorů. Podlahová plocha domu činí 234 m2 + dvougaráž 33 m2, zastavěná plocha celkem 222 m2, zahrada 4.243 m2.
Velkou výhodou je pak skvělá lokalita. Užívat si můžete jak výhledy do zeleně, tak na Beskydy. Budete mít kousek do Havířova i Těrlicka, kde naleznete školy, školky, lékaře, supermarkety i obchodní centra. Plavání, paddleboard či vodní lyže si můžete dopřát na Těrlické a Žermanické přehradě v blízkém okolí, které nejlépe poznáte na koloběžce či kole.
Hlavní výhody
- Lokalita, lokalita, lokalita
- zahrada, která poskytuje soukromí
- prostornost a dispoziční řešení domu
PRODÁNO
Půdorysy

Katastrální mapa
Zde můžete bydlet


























